















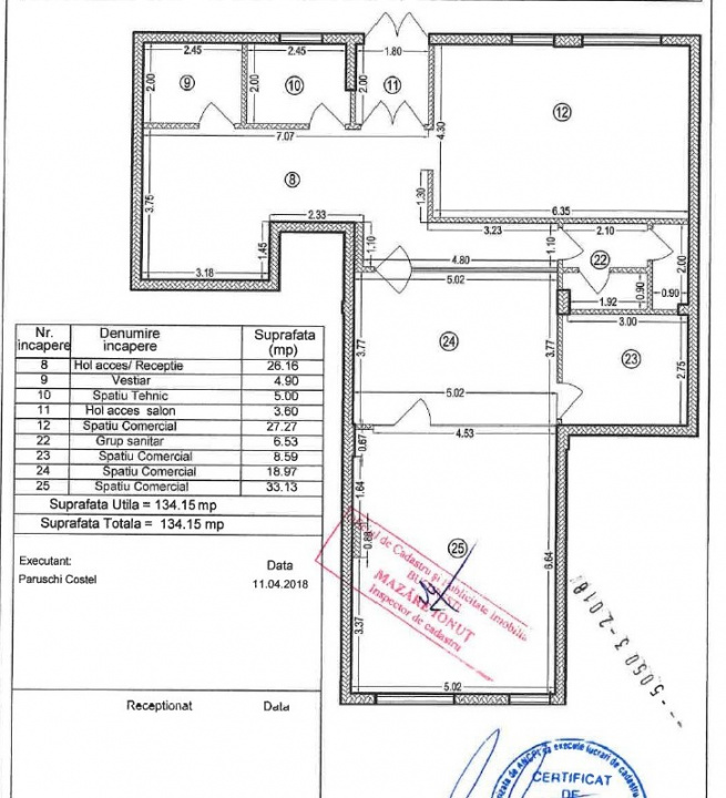
Va propunem spre vanzare un spatiu comercial cu suprafata de 134 mp, disponibil la parterul unui bloc de apartamente ce face parte din Cartierul Solar de pe Bd. Metalurgiei din sectorul 4.Zona este rezidentiala, in complex sunt 14 blocuri si aprox 1000 apartamente construite in anul 2018.In acest moment, business-ul ce functioneaza in spatiu se adreseaza cu produse si servicii locuitorilor cartierului dar si celor din sector prin sistem de livrare.Spatiul poate fi foarte potrivit pentru business horeca, dar si pentru afaceri din domeniile comert electronic, coletarie/livrare/depozitare sau productie usoara.Spatiul beneficiaza de doua cai de acces:-acces principal, direct in zona de desfacere a spatiului comercial, dotat cu bucatarie proprie, de unde puteti comanda unii dintre cei mai buni burgeri din zona, alaturi de alte produse specifice fast-food/rotiserie;-acces secundar, direct catre un spatiu deschis in suprafata de 60 mp unde acum se desfasoara petreceri pentru copii, ce sunt serviti cu bunatati din bucataria proprie.In plus, exista zone/camera pt depozitare, birou si 2 grupuri sanitare.Proprietatea dispune de centrala termica, calorifere din otel, aparate aer conditionat, tamplarie PVC cu geam termopan, podele placate gresie si parchet. Inaltimea spatiului este de 3.5 m.Va invitam la vizionare pentru a aprecia potrivirea cu businesul dumneavoastra sau oportunitatea de a investi!